
190平方米的大平层,用流畅的动线创利配资,窥见别样的雅致
190㎡的大平层内,处处写满设计师的用心,将功能与美表达得淋漓尽致,流畅的动线将屋内的空间布景般分门别类,每一处都适得其所,如一抹诗意水墨。卧室的布局十分考究,满足屋主的实际使用和对美的诉求,通常被忽略的保姆间也考虑周到,侧方体现了屋主的用心,颜色的基调也趋于沉稳低调,没有浮华的铺设,偶尔的画作点缀也有了享受慢时光的味道。
案例:宜居大平层
居住成员:大人,小孩
房屋面积:190㎡
房屋类型:大坪数
空间格局:3房2厅2卫
主要建材:原生木饰/天然理石/金属与皮革
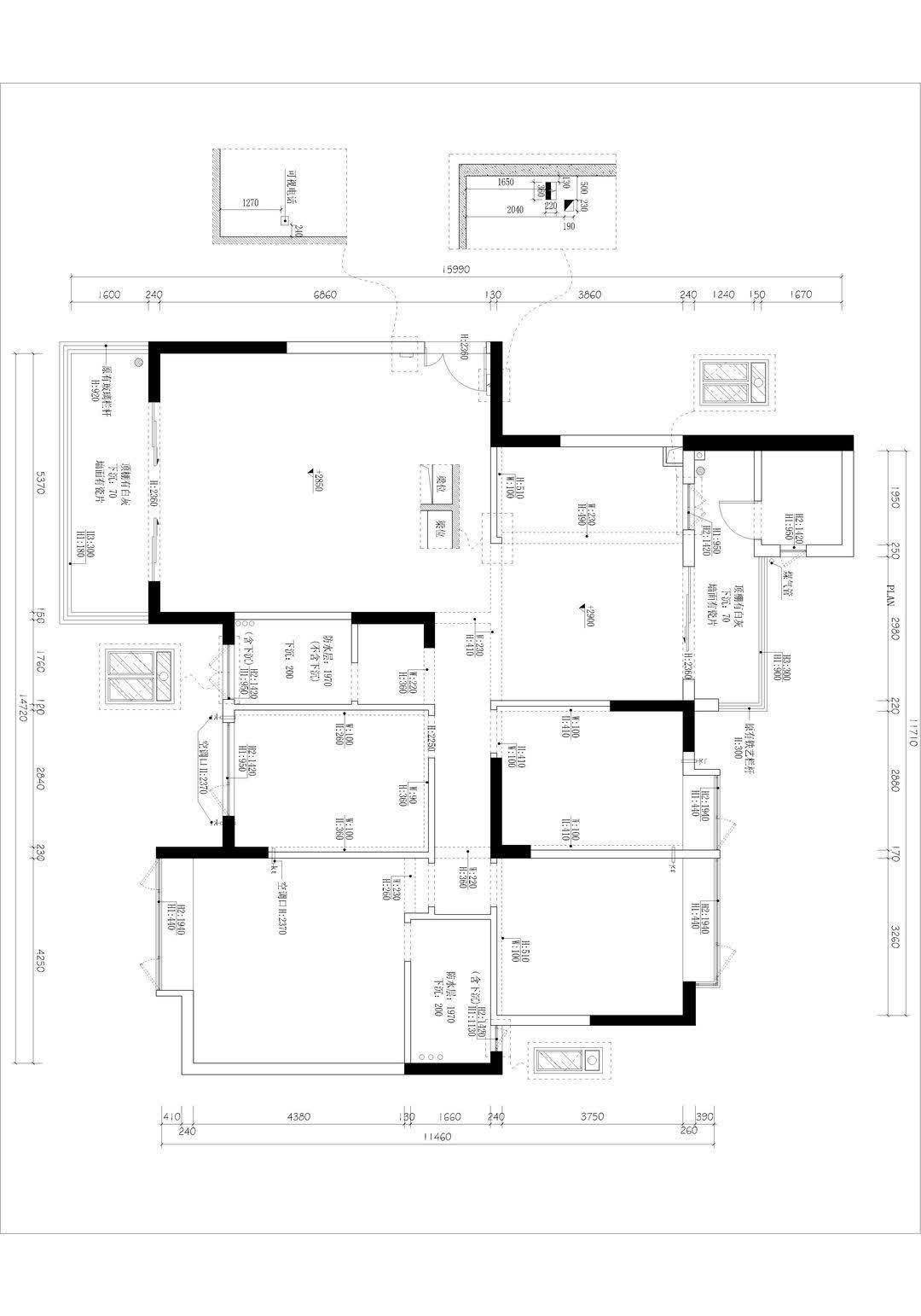
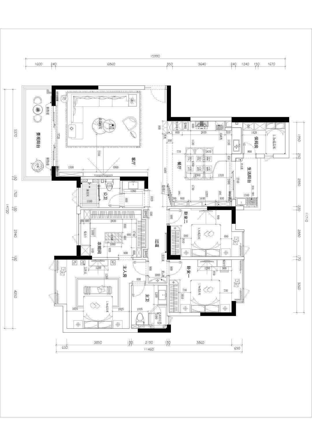
【户型图】


房屋的面积趋近于普遍家庭首选,应三胎政策放出,这样的户型面积无疑是热宠,并排的次寝居室面积适中,即使未来用双床作为调整也富裕,房屋最吸睛为主人卧,将功能区面积分配最佳,刚刚好满足所需;其次为客厅与景观阳台的处理,巧妙地将内与外分割,开放式的餐厅有生活阳台的加入,避免了餐余之后气味弥漫的尴尬。
【玄关】

设计重点:影绰地面呼应书柜
书柜的加入,让原本狭长的单一空间有了书香气,质朴无雕琢的墙面,只用几盏筒灯点缀,影影绰绰于天然石材的地面倒映,两组书柜在其中显其优雅的内涵,尽头的玄关柜似乎成了配角儿,丛书便是主人的代表,这一方天地有了精神层面的升华与塑造。

【客厅】创利配资

设计重点:典雅化身的背景墙
选用近似于鱼腹部颜色的大理石,铺设后的感觉明显有了宝玉般的滋润光泽,瞬间将客厅营造成为高贵典雅的化身,选用同色系的沙发组合以及地毯,将整个色调感赋予了宁静,一股自然力量恒生,复古的地灯映衬下更显其空间的大气浑然。
【厨房】

设计重点:融入西式的开放餐厨空间
L型布局是当下厨房常见形式,虽是开放餐厅但操作分区明确,充足的柜体收纳以及不同功能的嵌入式电器将其最大化应用日常。中间结合餐桌的设计,哑光处理显得格外冷静、低调,营造更灵活更实用的餐厨空间。
【餐厅】

设计重点:独具个性“石”元素的运用
表面带有矿石般的个性化肌理和粗糙的天然质感理石,使餐桌看起来纯朴加自然,散发着浓厚的艺术气息,又独具个性,配置的餐椅也以原生木加金属的现代设计,高高的酒柜设计实用大方,储物空间丰富,辅以暖色灯带,促其成为生活舞台的浪漫一隅。

【卫生间】

设计重点:打造星级质感的卫浴间
同样延续天然石材为主调,肌理纹路呼应客厅的背景墙体,悬柜与墙收纳得以点睛,保证自然明亮度同时,定格了星级卫生间的视觉,干湿分离的淋浴区均靠近窗户,满足了室内水气的自然“呼吸”更会改善不必要的水气“逗留”,宽敞通透的空间更好的提供了日常打理之便利。
【卧室】


设计重点:安静与柔和色彩共舞
卧室设计摒弃了热烈,选择了中性偏冷的色系,突出卧室空间安静澄清的气质,用小面积色彩点缀,体现温馨与自然,赏心悦目中透着轻灵与沉着,大面积低饱和色调表现安然静气,既营造出高级感的空间氛围,又强调一脉相承的设计初衷。
【儿童房】

设计重点:柔美公主范巧思在床幔
儿童房,设计师选用了浅粉色调为基底,背景墙通过浅白色提升儿童房的活力和气氛,圆了孩子的公主梦;女孩小时候最梦想的不过是拥有一个属于自己的城堡,其实,小时候的生活环境,直接影响孩子心理、审美、独立性等多方面的成长。一个有温度的儿童房应该具备:可以让孩子早早养成非凡气质的习惯。
【衣帽间】

设计重点:摒弃杂乱,寻求沉稳适用衣帽间
三面环绕的U型设计,保证了动线与光线的畅通,非透明与透明门体共同存在于空间,暖咖的色系尽显质感与低调,地柜与高柜贯穿整体,丰富必备的妆台布置,将精致的衣帽空间除了基本的收纳外增加了浪漫的生活仪式。
【走廊】

设计重点:用无声的语言表达静谧
以入口的角度审视门廊,它承载了居室间的连接,又是独立不受打扰的存在,不用夸富的形式表现,只是低吟生活的朴素,虽是简短的“路过”停留的一秒便知它的美好,木料的天然温度,伴着书本的烘托,柔柔的灯光下,可以驻留很久,尽头是主人可以全情展现格调的艺术区。
总结:
整套房的不同区域的考究设计创利配资,除了实用的居住性,更多地体现了情调与品位的彰显,用中性色调将审美视觉提升了更高的维度,没有极其奢华的点缀,原生的木饰以及天然的石材足以体现内核与其低调的本质,更好的匹配居住者对人文以及个性的多维度要求,用近似隐形的简练表达这一幅幅别样的充满质感的居住空间。
配查网提示:文章来自网络,不代表本站观点。